Imagine It
designs
.
Home
Portfolio
About
Contact
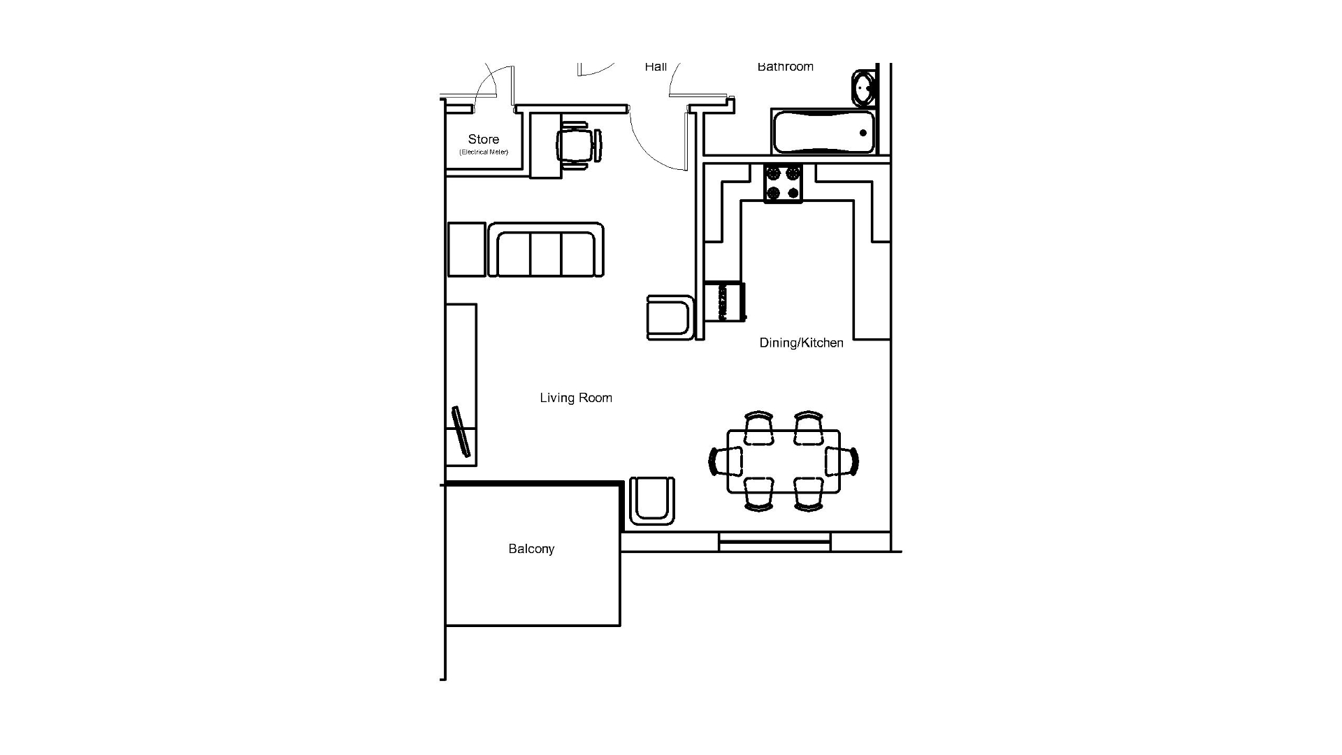
Modern Flat
View Images
Internal - Modern Flat
These images were created with only this 2D sketch as a referance.